Aprašymas
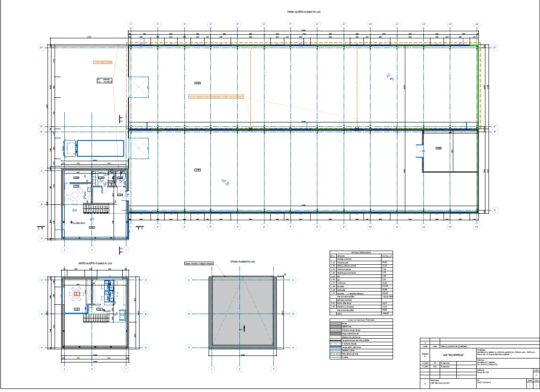
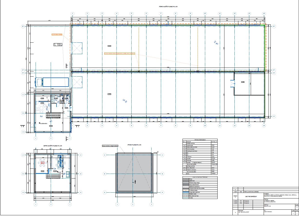
PARDUODAMAS PROJEKTAS. Komercinis sklypas su statybos leidimu (SLD), komercinio pastato projektu prie strateginio kelio Alytus-Kaunas. Paruoštas projektas vystymuI ASAP.
BENDRA INFORMACIJA.
Bendras plotas-1,2314 ha;
Paskirtis-pramonės ir sandėliavimo teritorijos;
Adresas-Kauno kelias 22 Butkūnų k. Alytaus rajonas;
Privažiavimas-asfaltuotas, nuovaža nuo kelio Alytus-Kaunas.
PRIVALUMAI.
Statybos leidimas (SLD);
Geodeziniai matavimai;
Topografinė nuotrauka;
Geologiniai tyrimai;
ESO sąlygos elektrai-100 KW.
Sandėliavimo paskirties pastatas su administracinėmis patalpomis;
Nuovaža į sklypą nuo kelio Alytus-Kaunas.
Alikti paskaičiavimai statyboms.
KOMUNIKACIJOS.
Elektra 100 kw. pagal technines sąlygas.
Vandentiekis, kanalizacija vietiniai pagal techninį projektą.
LOGISTIKA.
Atstumas iki Alytaus miesto vos 3 km. (t.y. 3-5 min automobiliu).
Asfaltuotas privažiavimas iki pat sklypo.
Puikiai matoma, reprezentatyti vieta prie pagrindinio kelio Alytus-Kaunas.
OPCIJOS.
Galimybė nuomotis Jūsų verslui tinkamas patalpas, neinvestuojant į pastato statybas, sudarius ilgalaikę nuomos sutartį ’Built to suit” koncepcijos pagrindais.









